Caniveau de câbles Bettermann
| matériau | acier |
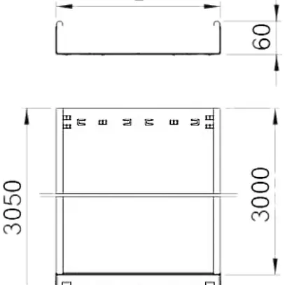
| longueur | 3050 mm |
| largeur | 400 mm |
| hauteur | 60 mm |
| épaisseur de matériau | 1.5 mm |
| protection superficielle | zingué en continu |
| version | raccordement intégré |
| qualité du matériau | autre |
| longueur de travail | 3050 mm |
| convient pour maintien de fonction | Non |
| section utilisable | 23800 mm² |
| version longue portée | Non |
| acier inoxydable, décapé | Non |
| perforation de montage au sol | Non |
| avec partie supérieure | Non |
| configuration de perçage de l'OTAN | Non |
| poinçonnage de côté | Non |
| 550 | |
| 1100 | |
| 1900 | |
| 2600 | |
| 1.5 - 3 | |
| type de test de charge selon IEC 61537 | type II |
| type de connecteur (serre-fil) | vissé |