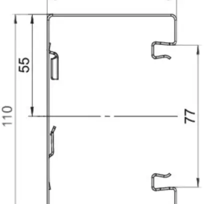
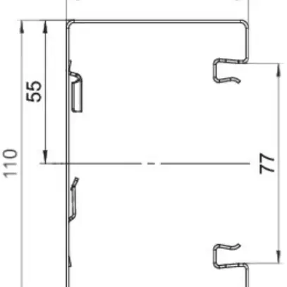
Profilo di base Bettermann GS, senza copertura, con staffe di aggancio per alloggiare una parete divisoria in lamiera d'acciaio, con perforazione a pavimento, parte inferiore
| materiale | acciaio |
| lunghezza | 2000 mm |
| larghezza | 110 mm |
| colore | bianco |
| protezione della superfice | non trattato |
| profondità | 70 mm |
| grado di protezione (IP) | IP30 |
| qualità del materiale | altri |
| numero RAL | 9010 |
| trattamento antibatterico | No |
| resistenza agli urti | IK07 |
| senza alogeni | Si |
| con pellicola protettiva | Si |
| sezione utile | 6036 mm² |
| foro per montaggio nel pavimento | Si |
| con fermacavo | No |
| numero di pareti divisorie innestabili | 1 |
| simmetrico | Si |
| larghezza parte superiore 3 | 0 mm |
| larghezza parte superiore 2 | 0 mm |
| larghezza parte superiore 1 | 76.5 mm |
| con connettore del canale | No |
| numero di parti superiori | 1 |
| tipo di montaggio delle parti superiori | ad interno |
| parti superiori fornite | No |
| forma rettangolare | Si |
| tipo di parete posteriore (lato interno) | con placchette di arresto |
| Sistema di canali | OBO GEK-S |